Appartamento Circeo? Immaginate una casa accogliente, dove lo stile marino si incontra con il fascino classico, creando un’atmosfera di relax e di quiete. Una casa pensata per una famiglia di due persone con un figlio adolescente, ma che sappia aprirsi all’ospitalità degli amici del ragazzo.
Una casa che è stata progettata sapientemente utilizzando il servizio offerto da GoPillar.
In questo articolo vi presentiamo due proposte di ristrutturazione per un appartamento che rispecchia queste esigenze, con un occhio di riguardo all’ottimizzazione degli spazi e alla creazione di un ambiente confortevole e funzionale.

Indice dei contenuti
Appartamento Circeo: un tocco di mare in un’oasi di relax
Lo stile marino, con i suoi colori tenui e le sue linee morbide, è perfetto per creare un’atmosfera di relax in casa. L’utilizzo di materiali come il legno, il ferro e la corda aggiunge un tocco di classicità e di fascino industriale.
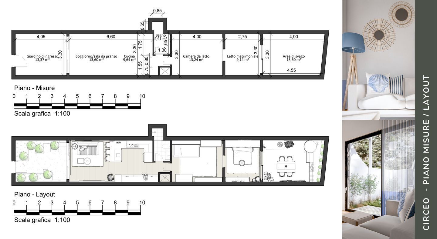
La casa si sviluppa su due livelli: al piano terra si trova la zona giorno, con soggiorno e cucina, mentre al piano superiore si trova la zona notte, con due camere da letto e un bagno. Per realizzare questo progetto, il cliente ha chiesto ai professionisti di GoPillar di fornire due ipotesi diverse di disposizione degli spazi.

Prima ipotesi: il fascino del classico
Nella prima ipotesi, la zona giorno è caratterizzata da un soggiorno con angolo cottura e da una camera da letto matrimoniale. La seconda camera da letto è adibita a camera per gli amici del figlio della coppia, con letti a soppalco o altri arredi salva-spazio.
L’area esterna è valorizzata con la creazione di una zona pranzo all’aperto, mentre sul retro della casa trovano posto una lavanderia, una doccia e una vasca idromassaggio.
Seconda ipotesi: la cucina si apre all’esterno

Nella seconda ipotesi, la cucina viene spostata all’esterno, sul retro della casa, creando un’ampia area living all’interno. In questo modo, si crea un ambiente più aperto e luminoso, perfetto per la convivialità.
L’area esterna diventa una vera e propria stanza all’aperto, con cucina, zona pranzo e area relax. Sul retro della casa trovano posto una lavanderia, una doccia e una vasca idromassaggio.
Soluzioni per tutte le esigenze
Entrambe le ipotesi prevedono la possibilità di installare pergole chiuse con vetrate rimovibili, per creare un ambiente versatile e adattabile alle diverse esigenze.
La scelta della soluzione migliore dipenderà dalle esigenze specifiche e dai gusti personali del cliente.

Ristruttura il tuo spazio con GoPillar: dai nuova vita alla tua casa!
Alla fine del contest, il cliente è rimasto molto soddisfatto del servizio offerto.
Se anche tu hai finalmente deciso di dare nuova vita al tuo spazio e sogni un look & feel completamente rinnovato per il tuo appartamento, GoPillar è la soluzione perfetta per te!
Richiedi ora una consulenza senza impegno: un nostro esperto ti contatterà per comprendere le tue necessità e fornirti tutte le informazioni di cui hai bisogno.
Perché scegliere GoPillar:
- Un team di architetti e designer altamente qualificati
- Oltre 30 progetti personalizzati su misura per ogni cliente
- Soluzioni innovative e creative per ottimizzare gli spazi
- Preventivi gratuiti e trasparenti
- Assistenza completa durante tutto il processo di ristrutturazione
Non aspettare oltre: trasforma il tuo sogno in realtà con GoPillar!
Sei interessato a ricevere decine di diversi progetti da architetti di tutto il mondo?
Lasciaci i tuoi contatti per ricevere, gratuitamente e senza alcun impegno, maggiori informazioni sul nostro rivoluzionario servizio di progettazione internazionale in crowdsourcing, oltre ad un coupon sconto per testare il nostro servizio con il 20% di sconto!




