Appartamento Napoli? Immaginate un attico signorile sul lungomare di Napoli, con tre affacci mozzafiato sul Golfo. La luce del sole che si riversa nelle stanze, il suono delle onde che si infrangono sulla scogliera, il Vesuvio che domina l’orizzonte: un sogno che diventa realtà, grazie alla progettazione facile e veloce su GoPillar.

Indice dei contenuti
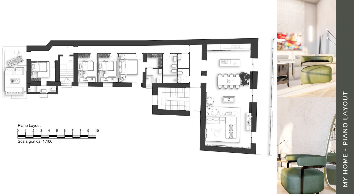
Appartamento Napoli: un progetto su misura per una famiglia
In questo articolo, vi raccontiamo la storia di un progetto di ristrutturazione di un attico a Napoli, realizzato per una famiglia con due bambini. L’obiettivo era quello di sfruttare al meglio gli spazi e la vista mozzafiato, creando ambienti confortevoli e funzionali.

La zona giorno
La zona giorno è stata suddivisa in due aree: il salone e la cucina. Il salone, situato nella zona 1 con vista panoramica sul mare, è stato arredato con un divano a L, due poltrone e un tavolino da caffè. La cucina, situata nella zona 2, è stata progettata con una penisola e un’isola, per sfruttare al meglio la luce naturale e la vista sul mare.
La zona notte
La zona notte è composta da:
- Camera matrimoniale con cabina armadio e bagno privato: la camera da letto è stata arredata con un letto matrimoniale, un armadio a muro e una cabina armadio. Il bagno privato è dotato di doccia, vasca idromassaggio e sanitari.
- Due camerette per i bambini: le camerette sono state arredate con letti singoli, armadi a muro e scrivanie.
- Un bagno per i bambini: il bagno è dotato di doccia, lavabo e sanitari.
- Una cameretta per la collaboratrice domestica: la cameretta è stata arredata con un letto singolo, un armadio a muro e un piccolo bagno con doccia.
- Un bagno ospiti: il bagno è dotato di lavabo, wc e bidet.
- Una lavanderia: la lavanderia è stata dotata di lavatrice, asciugatrice e lavandino.

Un terrazzo da vivere
Il terrazzo, pur essendo distaccato dalla cucina, è stato progettato per essere un’estensione della zona giorno. È stato coperto con una struttura in vetro e arredato con un divano, due poltrone e un tavolino da caffè. In questo modo, gli abitanti dell’appartamento possono godere della vista mozzafiato sul mare anche nelle giornate di pioggia.
Soluzioni intelligenti per sfruttare al meglio gli spazi
Il corridoio, essendo molto grande, è stato utilizzato per recuperare spazio. Sono state inserite armadiature a muro per riporre gli oggetti di uso comune.
Rispettare le misure standard
Nella progettazione delle camere da letto, sono state rispettate le misure standard:
- Camera matrimoniale: minimo 14 mq
- Cameretta con letto singolo: minimo 9 mq
Un progetto di successo
Il progetto di ristrutturazione dell’attico di Napoli è stato un successo. La famiglia è rimasta entusiasta del risultato finale: un appartamento confortevole, funzionale e con una vista incredibile sul mare.
Se desideri progettare o ristrutturare il tuo appartamento, affidati a GoPillar per sfruttare al meglio gli spazi, la luce naturale, e creare ambienti su misura per le tue esigenze.

Progetta il tuo appartamento con GoPillar!
GoPillar è il primo marketplace al mondo interamente dedicato alla progettazione architettonica. Questa innovativa piattaforma agisce come un luogo virtuale di incontro, dove clienti e professionisti provenienti da ogni angolo del mondo possono avviare concorsi di progettazione, ottenendo una vasta gamma di proposte tra cui selezionare le soluzioni più in linea con i propri gusti e specifiche esigenze.
Con una comunità di oltre 75.000 architetti attivi sulla piattaforma, provenienti da diversi paesi, GoPillar offre un’ampia expertise e molteplici approcci che arricchiscono il processo creativo, facilitando la realizzazione di progetti architettonici unici.
Per i privati in cerca di servizi di progettazione, GoPillar offre diversi vantaggi, tra cui la significativa opportunità di ricevere in media oltre 30 proposte per il proprio immobile. Questo rappresenta una netta differenza rispetto all’approccio tradizionale, in cui un cliente riceve solamente un progetto da un tecnico locale.
L’opportunità di esaminare molteplici idee funzionali e creative fornisce al cliente una visione più completa. Al termine del processo, conosciuto come “contest”, le idee più promettenti possono essere sviluppate in un progetto esecutivo. In questo modo, il cliente non solo ottiene una soluzione su misura, ma beneficia anche di un processo collaborativo che valorizza la personalizzazione e l’originalità nella progettazione architettonica.

GoPillar: un servizio chiavi in mano
Tuttavia, l’offerta di servizi presenti su GoPillar non si limita alla fase di progettazione preliminare. Dopo aver lanciato il contest online, il cliente ha la possibilità di trasformare le migliori idee di ciascun architetto in progetti esecutivi, avvalendosi anche della consulenza specifica del tecnico appartenente al team di GoPillar.
Segue un elenco cronologico di tutti i servizi che possono essere realizzati tramite GoPillar:
- Fase di Progettazione Preliminare: condotta su GoPillar.com
- Fase di Progettazione Esecutiva: che comprende anche la definizione degli impianti elettrici e idraulici. Entrambe queste fasi sono gestite online.
- Sopralluogo e Conferma del Computo Metrico Estimativo.
- Presentazione dei Titoli Edilizi: (CILA, SCIA o permesso a costruire, a seconda della natura dei lavori).
- Invio al Cliente di 3-5 Preventivi: Forniti da ditte di costruzione, basati sul capitolato redatto dal nostro tecnico.
- Avvio e Chiusura del Cantiere con Direzione Lavori.
Se anche tu, hai bisogno di progettare il tuo spazio e vuoi affidarti a un’unica azienda per ottenere un servizio chiavi in mano, rivolgiti a GoPillar. Richiedi la tua consulenza gratuita senza impegno.
Sei interessato a ricevere decine di diversi progetti da architetti di tutto il mondo?
Lasciaci i tuoi contatti per ricevere, gratuitamente e senza alcun impegno, maggiori informazioni sul nostro rivoluzionario servizio di progettazione internazionale in crowdsourcing, oltre ad un coupon sconto per testare il nostro servizio con il 20% di sconto!




