Ristrutturazione B&B? Immaginate di svegliarvi in una luminosa camera da letto, baciati dal sole pugliese e cullati dal canto degli uccelli. Il profumo del mare vi avvolge e vi invita a fare colazione in terrazza, con vista mozzafiato sull’Adriatico. Questo sogno può diventare realtà ad Otranto, dove un antico immobile dalle mille potenzialità è pronto a trasformarsi in un B&B grazie a GoPillar.
Il proprietario, con entusiasmo e lungimiranza, ha deciso di intraprendere un progetto di ristrutturazione ambizioso e coinvolgente. L’obiettivo è creare un’oasi di relax e comfort per i suoi ospiti, un luogo dove il fascino della tradizione pugliese si incontra con il design contemporaneo.
In questo articolo viaggeremo insieme alla scoperta di questo progetto, dalle idee iniziali alle sfide da affrontare, fino alle soluzioni creative che renderanno questo B&B un luogo davvero speciale. Sfogliate le immagini, immergetevi nei dettagli e lasciatevi ispirare dalla bellezza di Otranto.

Indice dei contenuti
Ristrutturazione B&B: un immobile dalle mille potenzialità
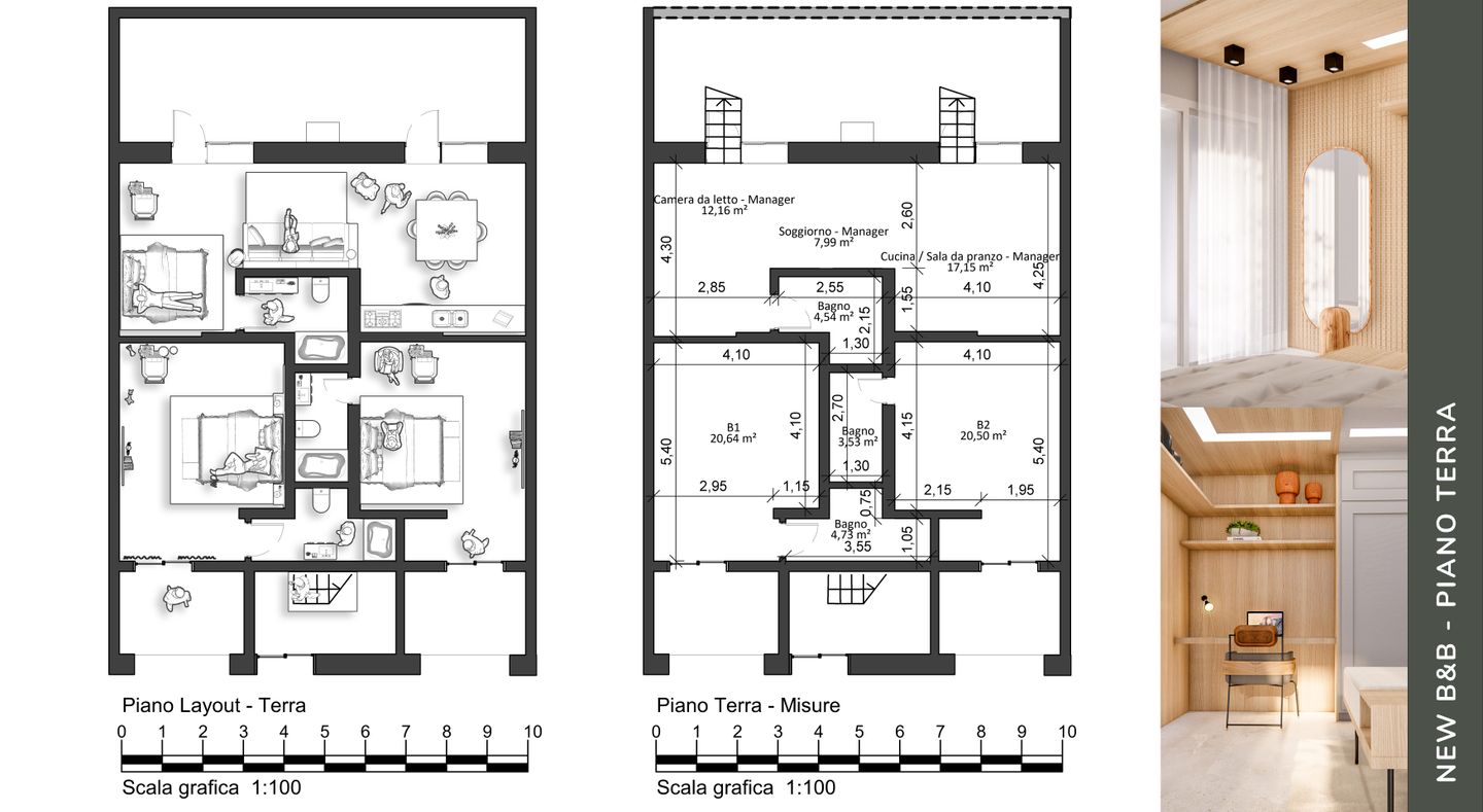
Situato in Via Vecchia Alimini 17, ad Otranto, l’immobile si sviluppa su due piani per una superficie totale di 120 mq, immerso in un terreno di 160 mq. La posizione strategica, tra due vie, offre un facile accesso e una suggestiva vista sul mare e sulla città.
Il piano terra, attualmente adibito a B&B, ospita 4 camere e 4 bagni. Il progetto di ristrutturazione prevede la trasformazione di questi spazi in due camere di livello, sfruttando l’ampiezza del piano e la luminosità naturale.
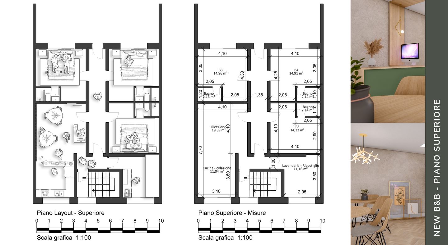
Al piano superiore, si trova un appartamento di civile abitazione con 3 camere, bagno, cucina e corridoio. Questo spazio sarà convertito in due camere ad uso ricettivo, con uno spazio dedicato al gestore, lavanderia e deposito per biancheria e materiale per le pulizie.

Sfide e soluzioni
La differenza di livello tra le due strade e la necessità di ottimizzare gli spazi sono alcune delle sfide che il progetto di ristrutturazione dovrà affrontare.
Per il piano terra, la soluzione sarà quella di creare due camere di livello sfruttando la discesa naturale del terreno. In questo modo, si otterranno due ambienti spaziosi e luminosi, con un’ampia vista panoramica.
Al piano superiore, l’obiettivo è quello di realizzare due camere ad uso ricettivo che siano funzionali e confortevoli. Lo spazio dedicato al gestore sarà ricavato da un piccolo angolo della casa, mentre la lavanderia e il deposito saranno posizionati in un locale adiacente.

Un progetto personalizzato
Le idee del proprietario saranno integrate con la professionalità degli architetti di GoPillar per creare un B&B unico nel suo genere, che rispecchi le sue esigenze e offra un’esperienza indimenticabile agli ospiti.
GoPillar si configura come il primo marketplace al mondo dedicato interamente alla progettazione architettonica. Questa innovativa piattaforma agisce come un punto d’incontro virtuale, dove clienti provenienti da ogni parte del mondo possono avviare concorsi di progettazione, ottenendo così una vasta gamma di proposte tra cui selezionare le soluzioni più in sintonia con i propri gusti e specifiche esigenze.
Con oltre 75.000 architetti attivi sulla piattaforma, provenienti da diverse regioni globali, GoPillar offre una diversificata expertise e molteplici approcci che arricchiscono il processo creativo, facilitando la realizzazione di progetti architettonici unici.
Per i privati che cercano servizi di progettazione, GoPillar offre diversi vantaggi, tra cui la significativa opportunità di ricevere oltre 30 proposte per il proprio immobile. Questo rappresenta una marcata differenza rispetto all’approccio tradizionale, in cui un cliente riceve solamente un progetto da un tecnico locale.
La possibilità di esaminare molteplici idee funzionali e creative fornisce al cliente una visione più completa. Al termine del processo, noto come “contest”, le idee più promettenti possono essere sviluppate in un progetto esecutivo. In questo modo, il cliente non solo ottiene una soluzione su misura, ma beneficia anche di un processo collaborativo che valorizza la personalizzazione e l’originalità nella progettazione architettonica.

Ristrutturazione B&B: un investimento sicuro e un sogno che diventa realtà
Il turismo in Puglia è in costante crescita e Otranto rappresenta una delle mete più ambite. Trasformare questo immobile in un B&B di charme può rivelarsi un investimento sicuro e redditizio.
Inoltre, il progetto di ristrutturazione rappresenta un’occasione per il proprietario di realizzare un sogno e di avviare un’attività gratificante.
Un esempio di come un immobile con un grande potenziale possa trasformarsi in un B&B di successo, offrendo un’esperienza di soggiorno unica e indimenticabile agli ospiti.
La ristrutturazione del B&B ad Otranto è un progetto che vi conquisterà. Restate connessi per seguire i prossimi aggiornamenti e, se desiderate ristrutturare il vostro spazio, lanciate il vostro contest su GoPillar!
Sei interessato a ricevere decine di diversi progetti da architetti di tutto il mondo?
Lasciaci i tuoi contatti per ricevere, gratuitamente e senza alcun impegno, maggiori informazioni sul nostro rivoluzionario servizio di progettazione internazionale in crowdsourcing, oltre ad un coupon sconto per testare il nostro servizio con il 20% di sconto!



